Check Availability This Room
From
$0.0
Night
Bilocale libero sul lato ovest, comodissimo per l’accesso all’area cani. Affacciato su giardino privato ed accessibile ai diversamente abili.
Uno dei cinque bilocali realizzati al piano terreno dell’antico casolare. Comodo con affacci sul giardino privato. Per tutta la famiglia e per godere del massimo relax. Accessibile ai diversamente abili.
All’appartamento si arriva tramite un vialetto che è facilmente raggiungibile in auto per consentire il trasporto dei bagagli all’interno. I due locali che compongono l’abitazione sono entrambi affacciati sul giardino ed offrono agli ospiti la possibilità di scegliere di ora in ora l’esposizione più piacevole: a sud con vista sulla piscina che ha sullo sfondo il mare e l’arcipelago o a nord dove la cornice è offerta dal verde delle colline e dal borgo di Campiglia Marittima.
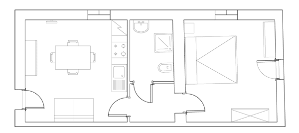
Entrando si accede ad un’accogliente zona giorno provvista di cucina perfettamente attrezzata e di un divano letto matrimoniale. Passando nel piccolo andito intermedio si ha accesso sia al bagno con doccia che alla camera da letto matrimoniale in cui è possibile sistemare all’occorrenza un letto singolo o una culla da campeggio.
La sistemazione consente di ospitare comodamente 4 persone. E’ ideale per famiglie con due bambini ma permette di accogliere anche un terzo bimbo o in alternativa quattro adulti. La camera e la zona giorno hanno infatti entrambe una porta finestra affacciata sul giardino ed il bagno è accessibile in modo indipendente.
In tutti gli appartamenti è sempre possibile ospitare amici a quattro zampe. I bilocali al piano terra, in particolare, con i loro affacci sul giardino consentono di mangiare e rilassarsi all’aperto anche in compagnia del proprio peloso.

- Camera matrimoniale / doppia
- Divano letto matrimoniale
- Possibilità culla / lettino
- Cucina attrezzata
- Bagno con doccia
- Wi-Fi
- LCD TV
- Aria Condizionata su richiesta
- Giardino con tavolo da picnic
- Piscine per adulti e bambini
- Barbecue
- Parcheggio
- Accessibile a diversamente abili