Spazioso bilocale affacciato sul giardino privato. Per tutta la famiglia, con un piccolo vano aggiuntivo che consente di sfruttare al meglio gli ambienti a disposizione.
Uno dei cinque bilocali realizzati al piano terreno dell’antico casolare. Comodo con affacci sul giardino privato. Per tutta la famiglia e per godere del massimo relax.
All’appartamento si arriva tramite un vialetto che è facilmente raggiungibile in auto per consentire il trasporto dei bagagli all’interno. I due locali che compongono l’abitazione sono entrambi affacciati sul giardino ed offrono agli ospiti la possibilità di scegliere di ora in ora l’esposizione più piacevole: a sud con vista sulla piscina che ha sullo sfondo il mare e l’arcipelago o a nord dove la cornice è offerta dal verde delle colline e dal borgo di Campiglia Marittima.
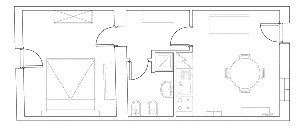
Entrando si accede ad un’accogliente zona giorno provvista di cucina perfettamente attrezzata e di un divano letto matrimoniale. Passando nel piccolo andito intermedio si ha accesso sia al bagno con doccia che alla camera da letto matrimoniale in cui è possibile sistemare all’occorrenza un letto singolo o una culla da campeggio.
La sistemazione consente di ospitare comodamente 4 persone. E’ ideale per famiglie con due bambini ma permette di accogliere anche un terzo bimbo o in alternativa quattro adulti. La camera e la zona giorno hanno infatti entrambe una porta finestra affacciata sul giardino ed il bagno è accessibile in modo indipendente.
In tutti gli appartamenti è sempre possibile ospitare amici a quattro zampe. I bilocali al piano terra, in particolare, con i loro affacci sul giardino consentono di mangiare e rilassarsi all’aperto anche in compagnia del proprio peloso.

- Camera matrimoniale / doppia
- Divano letto matrimoniale
- Possibilità culla / lettino
- Cucina attrezzata
- Bagno con doccia
- Wi-Fi
- LCD TV
- Aria Condizionata su richiesta
- Giardino privato con tavolo da picnic
- Piscine per adulti e bambini
- Barbecue
- Parcheggio